Lic. Associate Broker
With over $200 million in sales and hundreds of transactions throughout Manhattan and Brooklyn, Brandon’s record speaks for itself. He embodies the...
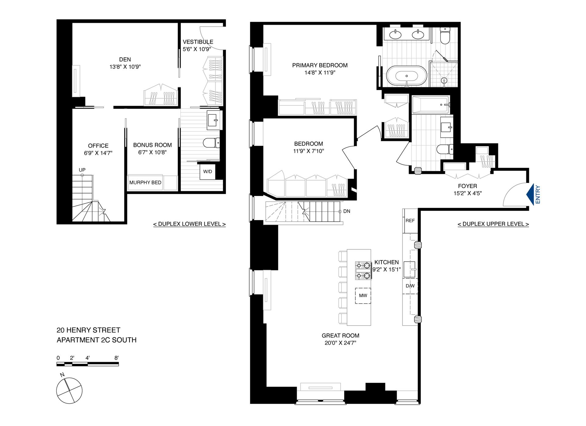
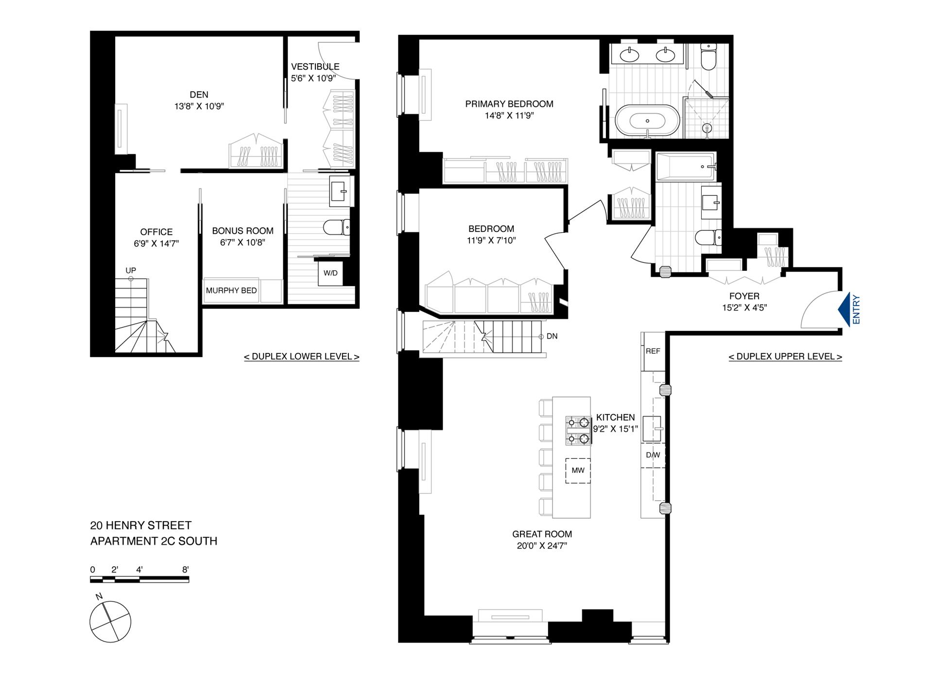
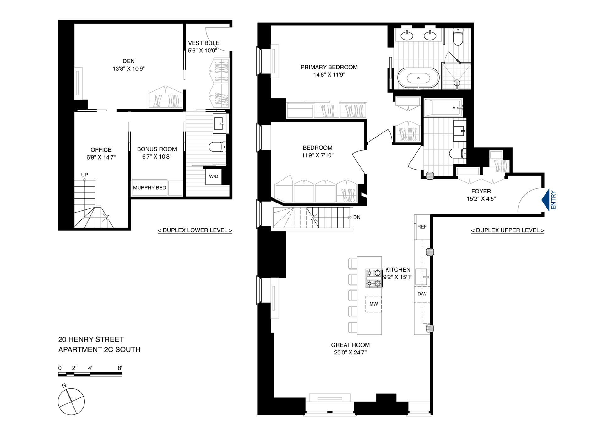
Request InfoWelcome home to this incredible 1,846sf south and west-facing corner 2BR/2BA true condominium loft with home office, den, entrances on two levels, 14ft ceilings, exposed original heavy timber beams and columns, distressed 8" wide white oak hardwood floors, and stunning oversized industrial arched casement windows that flood the space with natural light.
Upon entering, the 15' foyer features a large coat closet and an extraordinary original work by acclaimed British artist, Shantell Martin. Next, the open floor plan great room offers separate, warm and inviting areas for distinctive living, dining, food prep and recreation. The chef's kitchen features a massive center island with Caesarstone countertops, custom Wenge cabinetry, Bosch stainless steel appliances, and Grohe faucetry. Next to the kitchen is a spacious dining area with seating for ten, and an airy, sun-drenched living room for relaxing and entertaining. Both bedrooms are on the quiet, north side of the loft. Both are outfitted with spacious, custom Molteni built-in closets and lighting by Flos. The primary bathroom has a custom teak double-vanity, separate shower and a luxurious Kohler free-standing soaking tub, 'Calcutta Gold' marble wall tiles, 'Glacier White' glass shower tile, and Kohler Stillness fixtures.
Make your way down the oak staircase, adorned with more custom Flos lighting, to the finished first floor which features a spacious home office for two, and a versatile space we're calling a den that makes for a perfect cozy hangout or game room for lounging, exercise or home projects. Off of the den is a laundry room with Bosch washer/dryer, more custom-built Meltoni closets, Flos lighting, and an additional bonus space for storage, Peloton or overnight guests. The first floor also features an additional entryway that provides alternative entry into the home and includes a mud room for storing out of sight all of life's necessities. Well-priced, light-filled and spacious, this loft is in perfect move-in condition and is the epitome of Brooklyn living at its best!
Built in 1885 as the Mason Mints and Mason Dots factory by architect Theobald Engelhardt, who designed much of Williamsburg, Bushwick and Greenpoint, including the Ulmer Brewery, Arion Singing Hall, Ulmer Mansion, Bossert Mansion, and Pirika Chocolate factory in Crown Heights North. He built a sturdy brick factory with distinctive mill-like features and large windows to facilitate better light and working conditions. The building was converted to artists' housing in the 1970's. The project was bought in 2010 by the team of Canyon-Johnson Urban Fund, an affiliate of Magic Johnson Enterprises. In 2012, the new group brought in an architectural firm familiar with preservation and historic conversions, Joseph Pelli Lombardi, and converted 20 Henry Street into 24 luxurious loft condominiums plus 14 additional apartments in a new building separated by a lovely common courtyard with a distinctive sculpture and lush plantings.
Building amenities include: Doorman, resident manager, gym, bicycle storage, cold storage, and private storage. Close to transportation (1 stop to Wall Street), gourmet dining and shopping. Uniquely located near schools and transportation routes where Brooklyn Heights meets Dumbo, and around the corner from the Old Fulton Street entrance to the new Brooklyn Bridge Park, the Promenade and any kind of recreational activities, art galleries and performing arts.
| Total Bedrooms | 2 |
|---|---|
| Total Bathrooms | 2 |
| Full Bathrooms | 2 |
| Laundry Room | Building None, Washer Hookup, In Unit |
| Other Interior Features | Smoke Free |
| Stories | 7 |
|---|---|
| Air Conditioning | Other |
| Other Exterior Features | Building Roof Deck |
| Status | Sold |
|---|---|
| LIVING SPACE | 1,846 Sq.Ft. |
| MLS® ID | RLS10983957 |
| Type | Multi-Family |
| Year Built | 1864 |
| Neighborhood | Brooklyn Heights |
| Architecture Styles | Walk-Up |
| View Description | Other |
| SALES PRICE | $2,210,000 |
|---|---|
| HOA Fees | $2,738/mo |
24,098 people live in Brooklyn Heights, where the median age is 42 and the average individual income is $148,973. Data provided by the U.S. Census Bureau.
Total Population
Median Age
Population Density Population Density This is the number of people per square mile in a neighborhood.
Average individual Income
Nestled along the East River, Brooklyn Heights stands as one of Brooklyn's most historic and charming neighborhoods. Tree-lined streets, elegant brownstones, and stunning views of Manhattan create an atmosphere that seamlessly blends the old and the new. Join us as we explore the highlights of this iconic neighborhood.
Brooklyn Heights is easily accessible by subway, with several lines, including the 2/3, 4/5, and A/C, serving the area. Alternatively, a leisurely stroll across the Brooklyn Bridge provides a scenic entrance to this historic enclave.
The Brooklyn Heights Promenade, a tree-lined walkway along the waterfront, offers breathtaking panoramic views of the Manhattan skyline, the Statue of Liberty, and the Brooklyn Bridge. It's the ideal spot for a leisurely walk, a morning jog, or a romantic sunset rendezvous.
Immerse yourself in the architectural splendor of Brooklyn Heights. The neighborhood boasts a wealth of well-preserved brownstones, historic churches, and stately mansions. Take a self-guided walking tour to appreciate the diverse architectural styles that have shaped this district since the 19th century.
Brooklyn Heights is home to cultural institutions that enrich the community. The Brooklyn Historical Society, housed in a stunning Romanesque Revival building, offers exhibitions and educational programs. Nearby, St. Ann's and the Holy Trinity Church is a architectural gem with a rich history.
Montague Street serves as the neighborhood's commercial heart, offering a mix of independent boutiques, bookstores, and cozy cafes. Explore Sahadi’s for Middle Eastern delights, visit the family-run Garden of Eden for gourmet treats, or unwind at a local coffee shop for a taste of the neighborhood's relaxed pace.
Escape the hustle and bustle in the neighborhood's hidden green spaces. The serene Brooklyn Heights Promenade Gardens and the charming Poplar Street Community Garden provide quiet retreats for residents and visitors alike.
Brooklyn Heights offers a diverse culinary scene, from classic diners to upscale restaurants. Experience farm-to-table freshness at Colonie, savor inventive Mexican cuisine at Gran Electrica, or enjoy a classic New York-style pizza at Grimaldi's.
Adjacent to Brooklyn Heights, Brooklyn Bridge Park extends the green oasis along the waterfront. With sports fields, playgrounds, and seasonal events, it's a dynamic space for recreation and relaxation, offering unobstructed views of the iconic Brooklyn Bridge.
Brooklyn Heights fosters a sense of community through local events. From the lively Atlantic Antic street festival to the outdoor concerts at Pierrepont Playground, residents come together to celebrate the neighborhood's vibrancy.
Brooklyn Heights encapsulates the essence of historic Brooklyn while embracing the spirit of a modern community. With its rich history, cultural offerings, and picturesque landscapes, this neighborhood invites you to step back in time and savor the timeless charm that defines its character. Discover the beauty and warmth of Brooklyn Heights, where history and community converge in perfect harmony.
There's plenty to do around Brooklyn Heights, including shopping, dining, nightlife, parks, and more. Data provided by Walk Score and Yelp.
Explore popular things to do in the area, including Lil Larry's Liquor & Wine, Mariscos El Submarino, and Eastern District.
| Name | Category | Distance | Reviews |
Ratings by
Yelp
|
|---|---|---|---|---|
| Dining · $$ | 1.63 miles | 5 reviews | 5/5 stars | |
| Dining | 2 miles | 5 reviews | 5/5 stars | |
| Dining | 1.45 miles | 10 reviews | 5/5 stars | |
| Dining | 2.21 miles | 6 reviews | 5/5 stars | |
| Dining | 1.45 miles | 5 reviews | 5/5 stars | |
| Dining · $ | 2.61 miles | 78 reviews | 4.9/5 stars | |
| Dining | 2.32 miles | 14 reviews | 4.9/5 stars | |
| Dining | 2.32 miles | 11 reviews | 4.9/5 stars | |
| Dining | 1.39 miles | 19 reviews | 4.9/5 stars | |
| Dining | 2.34 miles | 8 reviews | 4.9/5 stars | |
| Shopping | 3.54 miles | 6 reviews | 5/5 stars | |
| Active | 2.33 miles | 9 reviews | 5/5 stars | |
| Active | 0.41 miles | 14 reviews | 5/5 stars | |
| Nightlife | 1.58 miles | 7 reviews | 5/5 stars | |
| Beauty | 3.61 miles | 10 reviews | 5/5 stars | |
| Beauty | 3.53 miles | 19 reviews | 5/5 stars | |
| Beauty | 0.99 miles | 6 reviews | 5/5 stars | |
| Beauty | 3.97 miles | 6 reviews | 5/5 stars | |
| Beauty | 1.55 miles | 5 reviews | 5/5 stars | |
| Beauty | 2.95 miles | 5 reviews | 5/5 stars | |
| Beauty | 2.19 miles | 36 reviews | 4.9/5 stars | |
| Beauty | 3.33 miles | 27 reviews | 4.9/5 stars | |
|
|
||||
|
|
||||
|
|
||||
|
|
||||
|
|
||||
|
|
With over a decade of expertise in Manhattan and Brooklyn, Brandon Mason looks forward to providing you with a real estate experience that is second to none. Feel free to explore our website, and contact Brandon with any questions you may have.
Let's Connect